Malabia al 400
- $145,000/USD
Descripción
Venta – Departamento 3 ambientes con dependencia | Apto crédito | Bajas expensas
Luminoso departamento de 3 ambientes con dependencia, ubicado en 3er piso al frente, sobre la calle Malabia, entre Av. Corrientes y Vera, en pleno Villa Crespo.Cuenta con orientación noroeste, lo que garantiza excelente entrada de luz natural durante gran parte del día.
La propiedad se destaca por su cómoda distribución, doble circulación y muy buen estado general.
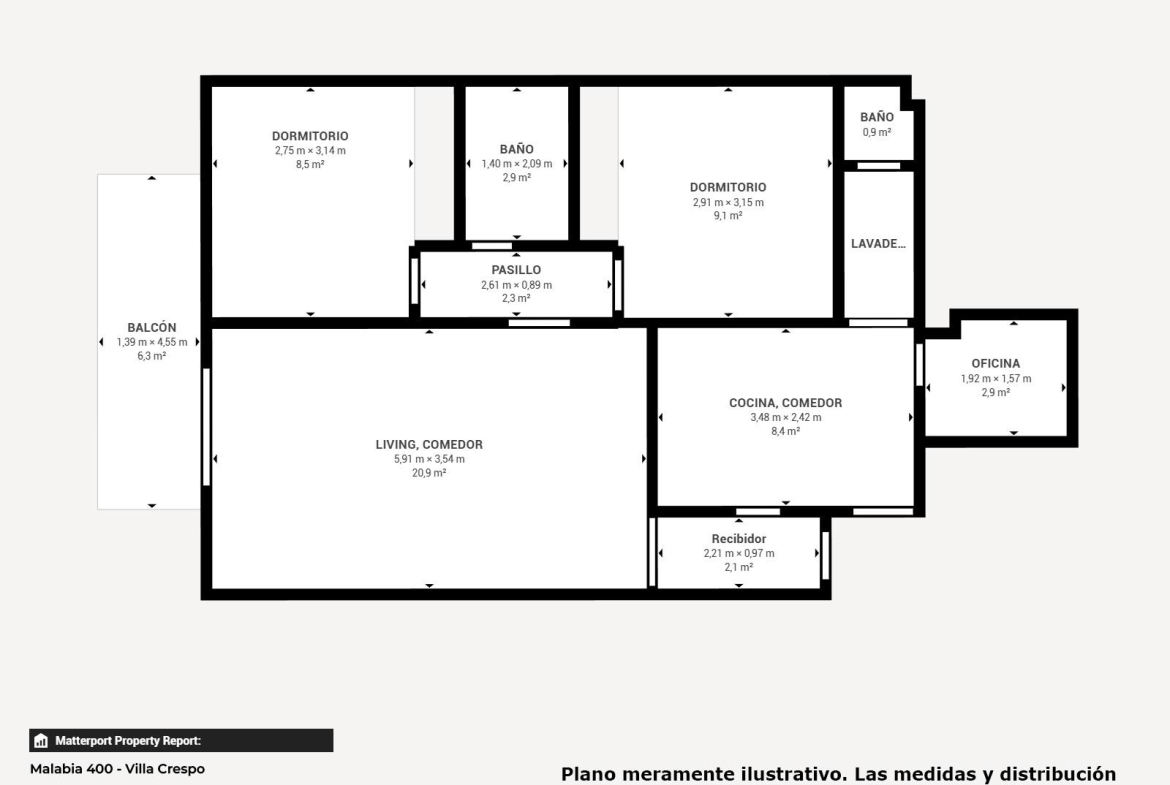
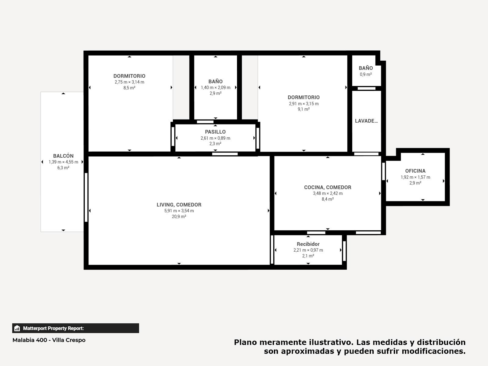
Distribución y características:
Entrada principal y de servicio.
Living comedor (3,57 x 6 m) con salida a balcón de buen tamaño, aire acondicionado frío/calor y placa ecosol.
Cocina (3,50 x 2,44 m), totalmente renovada en 2014, con muebles altos y bajos, y conexión para lavarropas o lavavajillas.
Lavadero independiente.
Dormitorio principal (3,20 x 2,91 m) al frente, con placard empotrado, piso de parquet y aire acondicionado frío/calor.
Segundo dormitorio (3,20 x 2,82 m) con ventana al lavadero, piso parquet, placard empotrado y placa Ecosol.
Dependencia de servicio, actualmente utilizada como escritorio.
Baño completo y toilette.
Sobre el edificio:
Edificio de aproximadamente 50 años de antigüedad.9 pisos con 8 departamentos por planta.Encargado con vivienda.Terraza de uso común.Dos ascensores.
Expensas: $148.000
Ubicación y accesos:
Excelente conectividad con múltiples líneas de colectivo: 15, 19, 24, 36, 55, 57, 65, 71, 76, 90, 92, 99, 106, 109, 110, 119, 124, 127, 141.Subte Línea B – Estación Malabia.
Ley 24.314: el edificio no cuenta con rampa de acceso para personas con movilidad reducida.
Observaciones: Las medidas son aproximadas y al solo efecto orientativo. Las definitivas surgirán del título de propiedad. El valor de expensas puede variar sin previo aviso.
Zampone PropiedadesC.U.C.I.C.B.A. 4629 – C.S.I. 5792
Direccion
Que hay cerca?
- Educación
- Liceo Cultural Británico (0.05 mi)
- Club Tablero de Comando (0.13 mi)
- Primeras Huellas (0.13 mi)
- Comida
- Alma Zen (0.03 mi)
- T'Cocino (0.04 mi)
- Rotisería Vegetariana Zen (0.07 mi)
- Salud y Medicina
- Farmacia San Martín de Porres (0.01 mi)
- Centro Odontológico (0.03 mi)
- Farmacity (0.07 mi)
- Restaurantes
- Massaro (0.06 mi)
- Café Crespín (0.08 mi)
- Los Armenios (0.09 mi)
- Transporte
- Estación Malabia - Linea B (0.06 mi)
- Remises Malabia (0.17 mi)
- Linea 65 (0.22 mi)





































